Follow us
Scroll
Mark VI-banner
Mark VI

Mark VI - VIC

map-markerVIC | March 2025

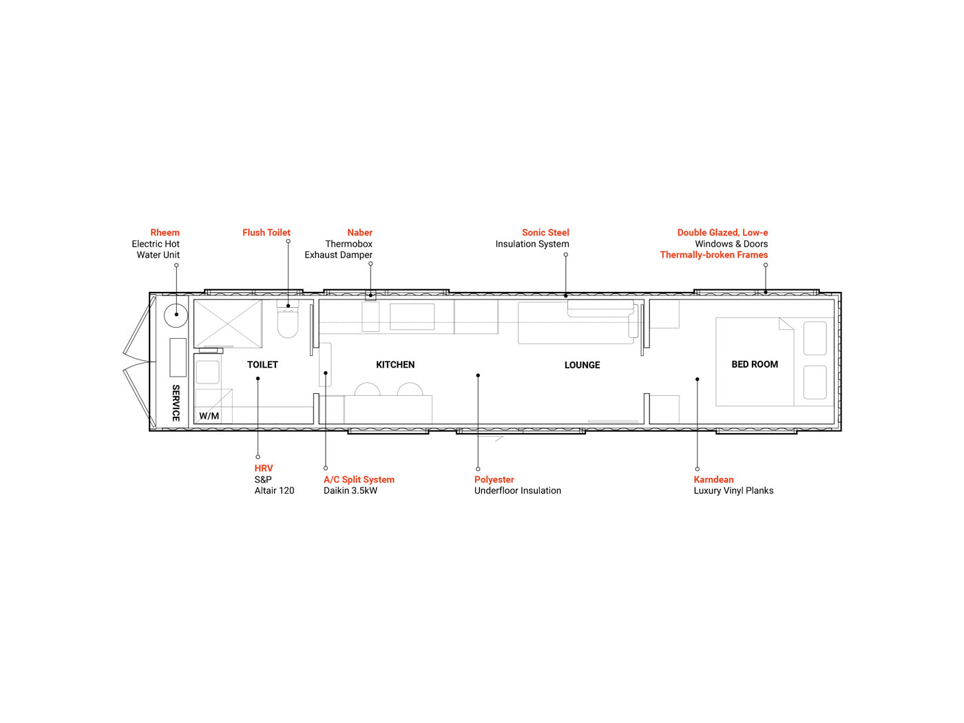
Introducing the new Mark VI: our thoughtfully designed container home tailored for long-term living. Perfectly balancing functionality with style, this model offers a spacious bedroom and bathroom for easy access and comfort. The full kitchen is within reach of a welcoming breakfast bar that invites the full view of surrounding landscape through the double-glazed round window. Mark VI emphasises modern design while embracing practicality. Natural light filters through well-placed windows, creating a bright and airy atmosphere that complements the sleek finishes and soft, earthy tones throughout the interior. The bedroom is designed to be filled with natural light and offers built-in wardrobes while the bathroom features elegant fixtures to elevate everyday living. With its dedication to comfort, the Mark VI is not just any container house — it’s a comfortable and healthy place to called home.

PROJECTS GALLERY
SEE OTHER PROJECTS
ENQUIRE NOW
close
Get In Touch

Use the form below to drop us an email if you have any question or comments.