Yes, you surely can modify one! Shipping containers can be transformed into whatever you heart desires: homes, offices, modular buildings, a small business, or even an art studio.
There’s so much you can do with a metal box, and Sonic Steel can help you modify a pre-fabricated container into something you’ve always wanted.
Engineered to be energy efficient, innovative, compliant, and suited to your lifestyle, this article will explore your options for shipping container modifications and how to do them.
Here are some shipping container modifications you can think about!
Be clear on how you want to use your space. You could turn it into a café, a temporary workshop or a place to work from home. Different layouts mean different fitouts in terms of plumbing, electrical and power.
And before beginning any physical work, check with your local council on permits and compliance; permanent structures, in most cases, always need to be approved. Temporary builds are worth confirming as well. Additionally, are you going to DIY part of the build (such as cutting steel, welding supports, and installing electricals) or do you prefer to leave that to professionals? These skills require licenses and specialist skills, so keep this in mind.
A 20ft shipping container is great for compact spaces or mobile setups, whereas a 40ft container is ideal if you want more room to move. High-cube shipping containers give you extra ceiling height.
Decided on one? Prepare your site with solid ground, easy access for delivery vehicles, and a flat, level base; permanent setups usually need piers, footings, or a concrete pad.
Here’s what Sonic Steel’s shipping container insulation looks like!

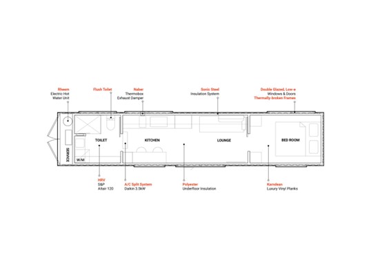
Insulating a container home (or office or retail space) is more complex than a normal house since it has limited width and fully welded corrugated walls. Then there’s the condensation issue, which happens when warm, moist air comes into contact with the cold metal surface. Our insulation method was developed to eliminate the risk of condensation. To stop condensation (which in turn causes mould growth), moisture must never come into contact with the internal metal surface.
Sonic Steel uses polyurethane (PUR) panels (not spray foam) as a vapour barrier between the container wall and the interior space, improving thermal and sound insulation whilst eliminating the internal metal surface’s exposure to moisture. We choose PUR for its vapour resistance and the superior insulating performance compared to EPS and other materials.

The polyurethane panels we use are manufactured in Australia by a block-moulded method, then stored for at least 30 days to cure and minimise off-gassing.
Next, they’re CNC cut to fit the corrugations of the container panels, and this forms a barrier that eliminates air gaps and maintains a consistent indoor temperature. Panels are strategically placed to accommodate electrical cables and plumbing pipes for a neat, concealed system.
To learn more, read: Understanding the Durability of Shipping Container Homes: How Long Do They Last?
As soon as your shipping container is on site, it’s ready to be modified! What does this process look like?

Sonic Steel makes use of compressed cement sheets for interior cladding on all wall and ceiling surfaces in every container. These sheets are resistant to moisture, mould, and rotting, reducing maintenance needs and enhancing the overall lifespan of the container home.
Their versatility allows for sleek and modern designs, contributing to both the aesthetic and functional aspects of the home, to cracking, warping and other external damages, so they keep their strong, stable structure.

As for exterior claddings, Sonic Steel utilises the existing corten steel (with marine-grade coating ) since it’s resistant against atmospheric corrosion and is durable in almost every harsh Australian environment.
From the tropics of Queensland to the temperature changes of Melbourne, the claddings and paints are chosen for its exceptional durability, UV resistance, and ability to withstand harsh weather conditions.
On their own, shipping containers are just a metal box, and they generate a lot of heat! It’s important to make sure that they’re safe, cosy, and practical to live in, work in, or store your items in. The right modifications will make all the difference!
Vents, fans and split system air conditioning can be installed for airflow and temperature control. For noise control and privacy concerns, acoustic insulation and internal cladding is recommended.
Reinforced doors, lockboxes, barred windows, and motion-lighting keep everything in the container safe and sound. All you need to do then is choose your finishes and fittings: ergonomic desks for offices, durable counters for cafés, or storage that is workshop-ready.
Sonic Steel shipping container houses have a wide range of options:

For example, let’s take a look at our Mark III shipping container. Converted from a new 40ft High-Cube, our Mark III (premium & off-grid) features a full kitchen, bathroom, study nook, a main double-bedroom, and a home office/ work space that could also be turned into a second double-bedroom.
The modern and efficient layout demonstrates that one does not have to choose between style and comfort, but can rather combine both to create a satisfying and practical living space.
With the extra inclusions of solar system, Velux skylight (solar operated), vertical windows (commercial grade), wallbed system, custom-built container doors on the side, etc., this model is a great starting point for anyone looking to live off-the-grid.

Do you have a granny flat or site office in mind? The key emphasis is always going to be ventilation, insulation and condensation. Custom designing and constructing premium shipping container modifications, there are many ways to modify them for residential or commercial purposes!
Our modification process covers everything from the design planning to the final completion. Innovative and creative, we have years of experience in the fields of engineering, architecture, and shipping container repairs.
Considering a modification to get your dream bar, home, café or office? We deliver a first-class structure that stands the test of time.

If you want a portable office to work remotely, modifying your shipping container is a great idea. From corporate work to recording spaces and much more, a shipping container office opens a world of possibilities.
Our prefabricated container offices are purposefully designed to address the important aspects of ventilation, insulation and condensation, which can often be overlooked by companies that only specialise in construction.

As a business owner, you’ll enjoy the switch to a more compact space to work in. Taking up minimal space while also with enough room for a small kitchen, serving area, and stock room.
Every shipping container bar/café that we create is the result of architectural and engineering expertise over the years. This includes the industry’s leading ventilation and insulation technology. Our construction process is also underpinned by high-quality technical workmanship to ensure that all containers are structurally sound.
Unlike a food truck, you won’t be transporting your operation every day, back and forth to its location; you’re already fully set up.

Shelves and roof vents for storage, or roller doors for a man-cave or workshop, there’s so much you can do with a shipping container.
We started by repairing and servicing shipping containers; now we create fully furnished, pre-fabricated containers.
View our brochure!

Whatever you have in mind for ideas, you can talk to our team. We don’t believe in ‘one size fits all’, so if you would like a bespoke build, we would be ready for one. From joining multiple containers side by side or building a double-storey, we can work with you to achieve a design that suits your requirements and budget.
Take a look at one of our latest projects in March 2025. The Mark VI in Victoria was designed for long-term living.

The full kitchen is within reach of a welcoming breakfast bar that invites the full view of the surrounding landscape through the double-glazed round window. Mark VI emphasises modern design while embracing practicality.
Natural light filters through well-placed windows, creating a bright and airy atmosphere that complements the sleek finishes and soft, earthy tones throughout the interior. The bedroom is designed to be filled with natural light and offers built-in wardrobes, while the bathroom features elegant fixtures to elevate everyday living.

You can also check out our Mark III, Mark V, Mark VII, or our Multi Container DIY options for inspiration.
Read: Top Benefits of Starting Your Own Shipping Container Café: Why It’s a Smart Choice
A specialist you can rely on, Sonic Steel has been involved in the industry since 2014 and is a product of both skill and experience. We bring the knowledge across from our architectural background, and fuse it with our technical craftsmanship to form living spaces that truly represent who we are and what we believe in: quality.
Whether you have plans for a gorgeous shipping container home in VIC, QLD, SA, WA, or anywhere across Australia, we can help you bring your container to life through modifications that suit you.
Contact us by calling 03 9364 8797, emailing enquiry@sonicsteel.com.au or visiting us in Brooklyn, VIC (by appointment only) for a closer look at our containers.
“With Tiny Home Expos in VIC, NSW and WA in the coming months, we are offering DISCOUNTED DELIVERY (*up to $5000) to each state the Expo is in, in exchange for using your project as a display at the show. Offer expires 12 weeks before each expo and is limited to one project per expo. Reach out to us now to secure your spot!”
How to Maximise Space in a Shipping Container Home: Secrets Revealed
Can You Modify a Shipping Container? Exploring Your Options
From Steel Box to Dream Home: How Smart Ventilation Transforms Container Living
Top 5 Benefits of Opening a Shipping Container Cafe: Why It’s a Smart Choice
How to Choose the Perfect Size for Your Relocatable Shipping Container Home